Objekt GM 2026009
Lage:
Der Strundepark befindet sich in verkehrsgünstiger Lage im nördlichen Stadtgebiet von Bergisch Gladbach und bietet eine attraktive Kombination aus guter Erreichbarkeit, gewachsenen Umfeld und Nähe zur Innenstadt. Dort sind verschiedene Handels-, Dienstleistungs- und Handwerkerbetriebe sowie verschiedene Einzelhändler, Cafés und Discounter angesiedelt.
Das zur Vermietung stehenden Objekt befindet sich in direkter Nachbarschaft zum Strundepark.
Objekt:
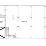
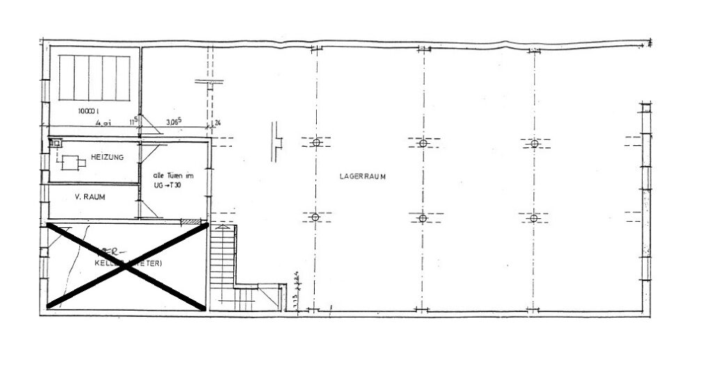
Bei dem zur Vermietung stehenden Objekt handelt es sich um eine 2-geschossige Produktions-/Lagerhalle mit angrenzenden Büroflächen. Im Erdgeschoss befinden sich die Büroflächen und die Produktions-/Lagerhalle, im Untergeschoss findet man weitere Lagerflächen mit sep. Zufahrt.
Nutzflächen:
Die Einheit hat eine Gesamtfläche von ca. 599 m², welche sich wie folgt aufteilt:
ca. 240 m² Halle im Erdgeschoss zzgl.
ca. 77 m² Bürofläche im Erdgeschoss zzgl.
ca. 282 m² Lagerfläche im Untergeschoss
Sonstiges:
Die Nutzung der Halle als Kfz-Werkstatt, Veranstaltungsort und/oder einem lärmintensiven Handwerksbetrieb wird vom Eigentümer nicht gewünscht. Ein direkter Einzelhandel ist nicht zulässig.
Option:
Auf Wunsch könnte eine Grundstücksfläche von ca. 900 m² zusätzlich angemietet werden. Sprechen Sie uns gerne an.
Ausstattung:
Allgemeine Aussttatungsmerkmale: mehrere Tageslichtfenster, staubfreier Coredur-Boden (gehärteter Industrieboden / Bodenlast bis zu 6t), Öl-Heizung (Büro und Halle), 2 große Sektionaltore im Erdgeschoss (ebenerdige Zufahrt), Hallenhöhe ca. 5,30 m, angrenzende Büroräume mit Aufenthaltsraum und sep. Eingang, weitere Hallen-und Lagerflächen im Untergeschoss mit sep. Zufahrt etc.
Auf Wunsch könnten vom derzeitigen Mieter entgeltlich Büromöbel übernommen werden.
Stellplätze:
Vor dem Objekt stehen mehrere Stellplätze zur Verfügung.
Energieausweis:
Baujahr des Gebäudes laut Energieausweis: ca. 1992
Wesentlicher Energieträger der Heizung: Heizöl
Art des Energieausweises: verbrauchsabhängiger Energieausweis
Endenergieverbrauch Wärme: 61,1 kWh/(m²a)
Endenergieverbrauch Strom: 13,0 kWh/(m²a)
Der Wert enthält den Stromverbrauch für Warmwasser, eingebaute Beleuchtung, Sontiges
Ausstellungsdatum des Energieausweises: 13.04.2026
Gerne kann der Energieausweis eingesehen und/oder ausgehändigt werden.
Bezugsfrei:
Nach Vereinbarung
Mietzins:
€ 3.200,– zzgl. Nebenkostenvorauszahlung zzgl. 19 % MwSt.
Nebenkosten:
€ 710,– zzgl. MwSt.
als monatliche Vorauszahlung mit jährlicher Abrechnung.
Kaution:
3 Monatskaltmieten
Courtage:
1,19 Monatskaltmieten (inkl. MwSt.) Mietercourtage, für den Nachweis oder die Vermittlung; verdient und fällig mit Abschluss des Mietvertrages.
Allgemeiner Hinweis:
Wir sind um korrekte Angaben bemüht, können aber keine Gewähr übernehmen. Die Angaben basieren auf Informationen, die uns von unserem Auftraggeber übermittelt wurden.
Irrtum vorbehalten.
