Objekt EH 2025005
Bauen wird immer teurer, Sanieren unberechenbar.
Warum Zeit, Nerven und Kosten riskieren?
Koffer packen und einziehen – dieses neuwertige Zuhause ist bereit für Ihr neues Kapitel!
Lage:
Das zum Verkauf stehende Objekt liegt in einem ruhigen, überwiegend gewachsenen Wohngebiet in Kommern-Süd/Mechernich. Die Umgebung ist geprägt von Ein- und Mehrfamilienhäusern, Gärten und viel Grün – ideal für Familien oder Menschen, die eine ruhige Wohnlage mit guter Anbindung suchen. Die Straßen sind gut erschlossen, oft verkehrsberuhigt, und Infrastruktur wie Einkaufsmöglichkeiten, Schulen (zwei naheliegende Grundschulen sowie ein Gymnasium) und öffentliche Verkehrsmittel sind im überschaubaren Radius vorhanden (Anbindung an die A1/A61 ca. 15 Fahrminuten).
Grundstück:
Das gepflegte Süd-Grundstück ist 550 m² groß.
Objekt / Bauweise / Baujahr:
Bei dem zum Verkauf stehenden Objekt handelt es sich um ein freistehendes, modernes Einfamilienhaus (Massivhaus der Firma: Viebrockhaus – KfW 40+ Energieeffizienzhaus) mit Solaranlage, Wärmepumpe, Gartengeräteschuppen und Carport auf einem gepflegten Grundstück.
Wohnfläche / Nutzfläche:
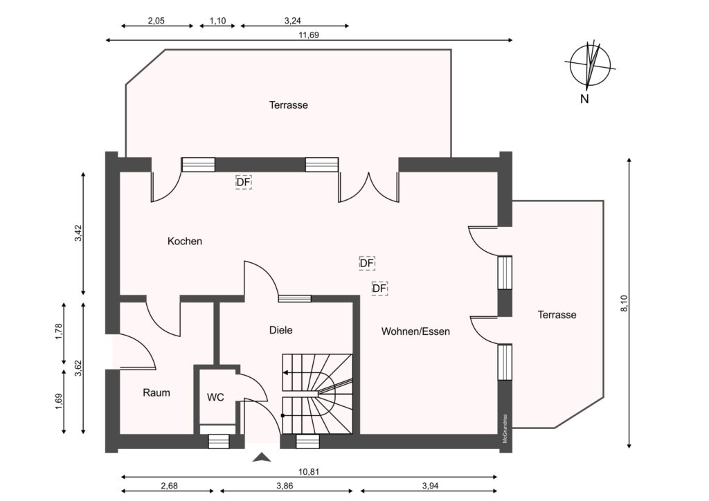
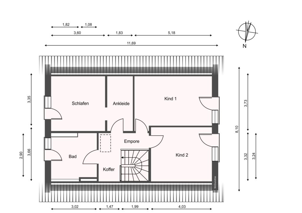
Gesamtwohnfläche von ca. 136 m², die sich wie folgt aufteilt:
ca. 73 m² im Erdgeschoss und ca. 62 m² im Dachgeschoss zzgl. weiterer Nutzfläche im Gartengeräteschuppen.
Übergabe / Mietverhältnisse / Mieteinnahmen:
Das Objekt wird ohne Miet- und/oder Pachtverhältnisse nach Vereinbarung übergeben.
Anbei eine Kurzzusammenfassung wesentlicher Sonder-Ausstattungsmerkmale:
Kunststofffenster mit 3-Fachverglasung
Luft/Wasser Wärmepumpe,
Solaranlage 4,6 kWp (Produktion=Verbrauch=4000kWh/a) mit Energiekostenlosgarantie bis 2029 (Energie für Wärmepumpe)
Fußbodenheizung
Hauswirtschaftsraum mit direktem Ausgang in den Garten
Villeroy Boch Sanitärobjekte und Fliesen
Nolte Küche, Neff Küchengeräte, AEG-Induktionskochfeld mit integriertem Dunstabzug (Preis auf Anfrage)
Überdachte Terrasse in Ausrichtung Süd
Carport mit Schuppen und Vorbereitung für E-Ladesäule (Drehstrom und LAN)
Ausbau S-Bahn Anschluss Mechernich ab voraussichtlich 2030 geplant
Bushaltestelle Richtung Bahnhof Mechernich/ Euskirchen 150m
PKW-Stellplätze:
Das Objekt verfügt über ein Doppel-Carport zzgl. weiterer PKW-Stellplätzen direkt vor dem Carport.
Energieausweis:
Baujahr des Gebäudes laut Energieausweis: 2019
Wesentlicher Energieträger der Heizung: Strom
Art des Energieausweises: bedarfsabhängiger Energieausweis
Endenergiebedarf: 6,5 kWh/(m²a)
Energieeffizienzklasse: A+
Ausstellungsdatum des Energieausweises: 01.10.2019
Gerne kann der Energieausweis eingesehen und/oder ausgehändigt werden.
Kaufpreis:
€ 549.000,– zzgl. 3,57 % (inkl. MwSt.) Käufercourtage
Courtage:
3,57 % (inkl. MwSt.) Käufercourtage vom Kaufpreis für den Nachweis oder die Vermittlung; verdient und fällig mit notariellem Kaufvertragsabschluss.
Allgemeiner Hinweis:
Wir sind um korrekte Angaben bemüht, können aber keine Gewähr übernehmen. Die Angaben basieren auf Informationen, die uns von unserem Auftraggeber übermittelt wurden.
Irrtum vorbehalten.
Bitte fordern Sie unser ausführliches Exposé an!
