Objekt EH 2025006
Lage:
Die zum Verkauf stehende Liegenschaft befindet sich in schöner, ruhiger Lage im Stadtteil Paffrath. Alle Einrichtungen zur Deckung des täglichen Bedarfs sowie alle Schulformen, Kindergärten, Ärzte und das Kombibad sind fußläufig erreichbar. Die Zentren von Bergisch Gladbach und Köln–Dellbrück sind jeweils in wenigen Fahrminuten zu erreichen.
Bergisch Gladbach ist eine beliebte, große kreisangehörige Stadt im Bergischen Land, östlich von Köln. Sie ist Kreisstadt, größte Stadt des Rheinisch-Bergischen Kreises und bildet ein Mittelzentrum mit derzeit über 110.000 Einwohnern mit Freizeit- und Naherholungsmöglichkeiten.
Grundstück:
Das gepflegte West-Grundstück ist 286 m² groß.
Objekt / Bauweise / Baujahr:
Bei der zum Verkauf stehenden Liegenschaft handelt es sich um ein freistehendes Einfamilienhaus auf einem gepflegten Grundstück mit direkt angrenzender Garage.
Wohnfläche / Nutzfläche:
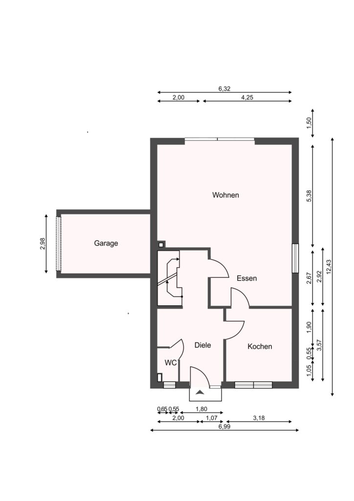
Gesamtwohnfläche von ca. 133 m², die sich wie folgt aufteilen lässt:
- ca. 70 m² Wohnfläche im Erdgeschoss
- ca. 63 m² Wohnfläche im Obergeschoss
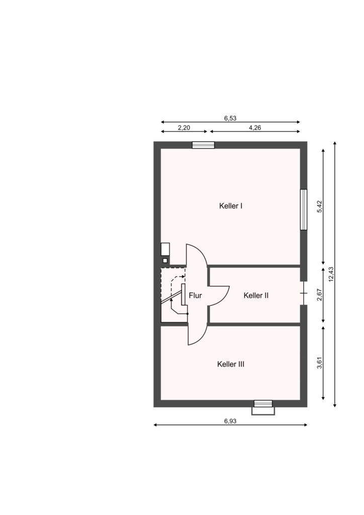
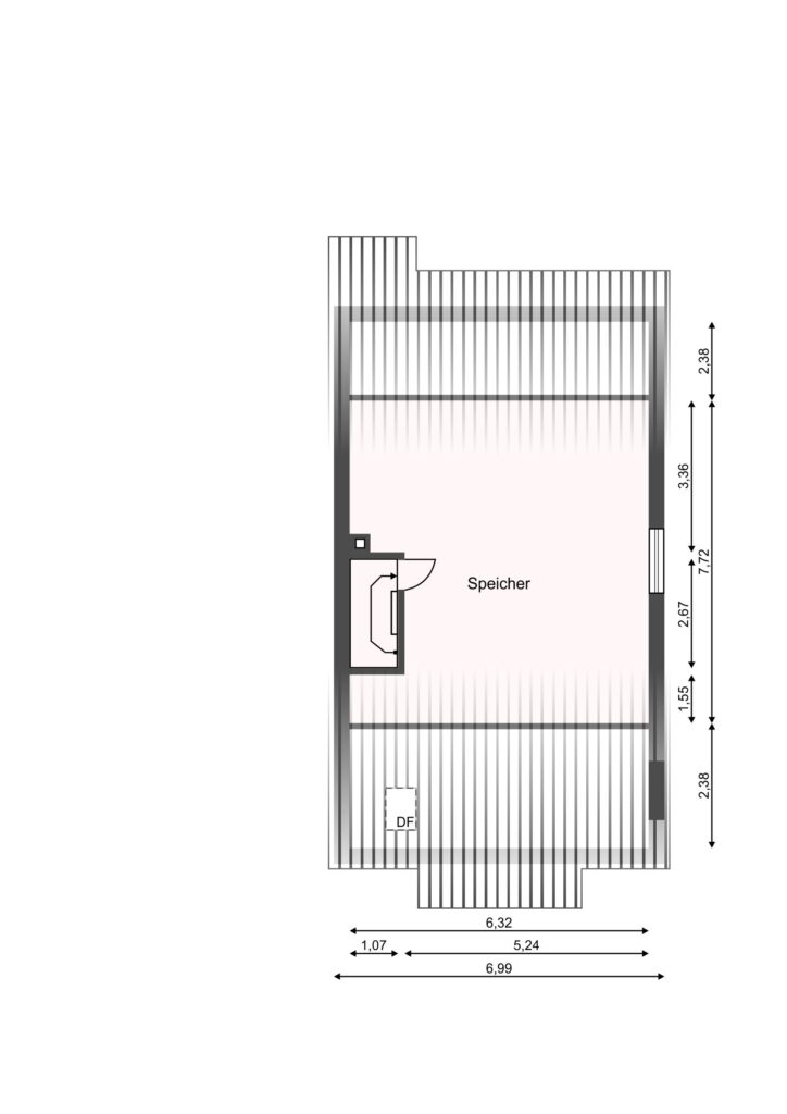
Weitere Nutzfläche befindet sich im Kellergeschoss sowie im ausgebauten Speicher.
Übergabe / Mietverhältnisse / Mieteinnahmen:
Das Objekt wird ohne Miet- und/oder Pachtverhältnisse nach Vereinbarung übergeben.
Ausstattung / Aufteilung laut Ist-Zustand:
Die Aufteilung des Objekts lässt sich wie folgt beschreiben:
- Erdgeschoss: Diele, Gäste-WC, Wohnküche, großzügiger Wohn- und Essbereich,
direkter Zugang zum Gartenbereich über den Wohn- und Essbereich.
- Obergeschoss: Flur, Badezimmer, zwei Zimmer (ehemals drei Zimmer, zwei wurden vereint)
- Speicher: ausgebaut
- Kellergeschoss: drei Kellerräume (einer mit direktem Zugang zum Gartenbereich)
Allgemeine Ausstattungsmerkmale: Isolierverglaste Holzrahmenfenster (überwiegend Baujahr 1999) mit elektrischen Rollläden im Erdgeschoss (restliche Rollläden werden manuell betriebenen), Gas-Zentralheizung (Baujahr Wärmetauscher 1987) mit zentraler Warmwasseraufbereitung, Parkettfußboden im Wohnzimmer (ansonsten Teppich- und Fliesenfußböden), elektrische Sonnenmarkise im Garten, Garagenstellplatz etc.
PKW-Stellplätze:
Zu dem Objekt gehört eine Garage mit weiterer Stellplatzfläche für einen PKW direkt vor der Garage.
Zusätzliche, kostenfreie Stellplatzfläche befinden sich in umliegender Umgebung.
Energieausweis:
Baujahr des Gebäudes laut Energieausweis: 1988
Wesentlicher Energieträger der Heizung: Erdgas LL
Art des Energieausweises: verbrauchsabhängiger Energieausweis
Endenergieverbrauch: 159,70 kWh/(m²a)
Energieeffizienzklasse: E
Ausstellungsdatum des Energieausweises: 11.06.2025
Gerne kann der Energieausweis eingesehen und/oder ausgehändigt werden.
Kaufpreis:
€ 589.000,– zzgl. 3,57 % (inkl. MwSt.) Käufercourtage
Courtage:
3,57 % (inkl. MwSt.) Käufercourtage vom Kaufpreis für den Nachweis oder die Vermittlung; verdient und fällig mit notariellem Kaufvertragsabschluss.
Allgemeiner Hinweis:
Wir sind um korrekte Angaben bemüht, können aber keine Gewähr übernehmen. Die Angaben basieren auf Informationen, die uns von unserem Auftraggeber übermittelt wurden.
Irrtum vorbehalten.
Bitte fordern Sie unser ausführliches Exposé an!
