Objekt GM 2026008
Lage:
Das angebotene Objekt befindet sich im Gewerbegebiet von Bergisch GladbachBensberg/Frankenforst. Der Standort liegt in einem etablierten, gemischt genutzten Gewerbegebiet mit guter Infrastruktur und bietet hervorragende Bedingungen für einen Bürostandort, produzierende Unternehmen, Handwerk oder Lagerlogistikunternehmen.
Über die nahegelegene Autobahnauffahrt der A4 (Anschlussstelle Bensberg/Frankenforst) besteht eine direkte Verbindung nach Köln (ca. 20 Minuten) sowie in das gesamte Rheinland. Auch die Innenstadt von Bergisch Gladbach ist in wenigen Fahrminuten erreichbar. Für Mitarbeiter ist die Lage auch mit dem öffentlichen Nahverkehr gut zugänglich, Bus- und Bahnhaltestellen befinden sich in fußläufiger Nähe. Auch der Flughafen Köln/Bonn ist in einigen Kilometern zu erreichen.
Objekt:
Zur Vermietung stehen 2 moderne und lichtdurchflutete Büroetagen sowie eine Halle. Die Büroetagen befinden sich im Erdgeschoss und Obergeschoss, eines gepflegten Objektes.
Die Flächen können individuell getrennt, oder gemeinsam angemietet werden.
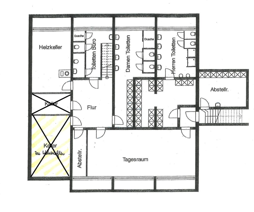
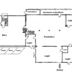
Die Hallenfläche unterterteilt sich ein eine große Halle sowie mehrere kleine Hallen bzw. Lagerräume (siehe Grundrissskizze). In der Vergangenheit wurden die Flächen gemeinschaftlich genutzt. Zu der Halle gehört ein überdachter Außenbereich, welcher z. B. als Lager genutzt werden könnte. Weiterhin gehören zu der Halle großzügige Sozial- und WC-Anlagen, welche sich im Untergeschoss des Objektes befinden. Der Zugang kann direkt über die Halle, oder über das zentrale Treppenhaus erfolgen. Da die Halle über mehrere Zu-/ und Ausgänge verfügt, könnte die Halle auch flexibel geteilt werden.
Vor Mietbeginn wurden die Flächen aufwendig modernisiert und befinden sich in einem modernen und zeitgemäßen Zustand.
Nutzflächen:
Die Gesamtfläche von ca. 1.130 m² teilt sich wie folgt auf:
ca. 265 m² Bürofläche im EG zzgl. Sanitär-Anlagen im UG
ca. 246 m² Bürofläche im OG
ca. 619 m² Halle zzgl. überdachter Außenfläche zzgl. Sanitär-Anlagen und Sozialraum im UG
Ausstattung:
Allgemeine Aussttatungsmerkmale der Büroflächen:
hochwertige Echtholz-Parkettböden, isolierverglaste Fensteranlagen mit elektrischen Außenraffstoren, moderne WC-Anlagen, Odenwalddecken mit integrierter Beleuchtung, EDV-Kabelkanäle etc.
Allgemeine Aussttattungsmerkmale der Halle:
Tageslichtfenster, Oberlichter, Rolltor, sep. Spritzkabine mit elektrischer Abluft, Industrieboden für Schwerlasten, Gas-Heizung als Flächenheizung unter der Decke, Industriekühlanlage mit Warm- und Kaltwasserkreislauf zur Maschinenkühlung, 2 elektrische Kräne (DEMAG 250 kg), mehrere Starkstromanschlüsse, Druckluftversorgung innerhalb der Halle, sanierte WC-Anlagen und Sozialraum (Tagesraum) im UG mit Tageslichtfenstern, Stromversorgung mit Trafostation (10 kV) auf dem Gelände etc.
Laut dem Vermieter wird in Kürze das Objekt über einen Glasfaseranschluss versorgt.
Auf Wunsch könnte nach Absprache das vorhandene Rolltor gegen ein größeres ausgetauscht werden.
Stellplätze:
Zu dem Objekt können mehrere Außenstellplätze direkt an dem Objekt bzw. auf einem nahe gelegenen Privatparkplatz für jeweils € 30,– zzgl. MwSt. angemietet werden.
Energieausweis:
Baujahr des Gebäudes laut Energieausweis: ca. 1960
Wesentlicher Energieträger der Heizung: Gas
Art des Energieausweises: verbrauchsabhängiger Energieausweis
Endenergieverbrauch Wärme: 215,4 kWh/(m²a)
Endenergieverbrauch Strom: 250,9 kWh/(m²a)
Der Wert enthält den Stromverbrauch für Warmwasser, eingebaute Beleuchtung, Sontiges
Ausstellungsdatum des Energieausweises: 02.09.2025
Gerne kann der Energieausweis eingesehen und/oder ausgehändigt werden.
Bezugsfrei:
Sofort bzw. nach Vereinbarung
Mietzins:
auf Anfrage
Option Teilanmietung:
Die Flächen können auch einzeln angemietet werden. Hierbei ergeben sich folgende mögliche Aufteilungen:
Bürofläche im Erdgeschoss / ca. 265 m²
Mietzins auf Anfrage
Bürofläche im Obergeschoss / ca. 246 m²
Mietzins auf Anfrage
Hallenfläche / ca. 619 m²
Mietzins auf Anfrage
jeweils zzgl. Nebenkosten und MwSt.
Kaution:
3 Monatskaltmieten
Courtage:
2,38 Monatskaltmieten (inkl. MwSt.) Mietercourtage, für den Nachweis oder die Vermittlung; verdient und fällig mit Abschluss des Mietvertrages.
Allgemeiner Hinweis:
Wir sind um korrekte Angaben bemüht, können aber keine Gewähr übernehmen. Die Angaben basieren auf Informationen, die uns von unserem Auftraggeber übermittelt wurden.
Irrtum vorbehalten.
