Objekt GM 2025013
Lage:
Die Büroflächen befinden sich im Zentrum von Bensberg, hinterrücks der Fußgängerzone. Der Busbahnhof sowie die Straßenbahnendhaltestelle der Linie 1, mit direkter Anbindung nach Köln, sind direkt gegenüber zu finden. Alle Deckungen des täglichen Bedarfs, Bürostandorte, Notare, Ärzte, Banken etc. sind fußläufig erreichbar. Die Autobahnanschlussstelle der A4 ist in wenigen Fahrminuten zu erreichen. Der Köln Bonner Flughafen ist ca. 20 min von dem Objekt entfernt.
Objekt:
Die Büroflächen befinden sich in einem gepflegten, modernen Geschäftshaus (Baujahr 2000), im 1. und 2. Obergeschoss. Das Objekt hat keinen Aufzug.
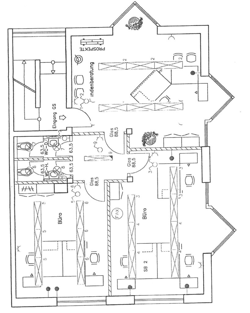
Nutzflächen:
ca. 173 m² Gesamtnutzfläche, welche sich derzeit wie folgt aufteilt:
ca. 86 m² Nutzfläche im 1. Obergeschoss und
ca. 87 m² Nutzfläche im 2. Obergeschoss
Eine Teilanmietung der Flächen ist ggf. denkbar und möglich.
Aufteilung/Ausstattung:
Die Flächen teilen sich derzeit wie folgt auf:
Im 1. Obergeschoss befinden sich 3 Büroräume, die Diele sowie zwei WC´s.
Im 2. Obergeschoss befinden sich 3 Büroräume, ein EDV-Raum/Lager sowie eine Teeküche.
Die Büros können aufgrund ihrer Größe als Einzel,- oder Teambüros genutzt werden.
Allgemeine Ausstattungsmerkmale:
bodentiefe, isolierverglaste Holzfenster, teilweise mit Innenlamellen bzw. Plissees für den Sonnen- und Sichtschutz, Rasterleuchten, eingerichtete, neuwertige Teeküche, Fußbodenheizung, grauer, gepflegter Filzbodenbelag, Alarmanlage im 1. Obergeschoss, Wasserzähler, Anbringungsmöglichkeit einer Leuchtreklame etc.
Stellplätze:
Zu dem Objekt gehört ein Carport, welcher für zusätzlich € 60,– zzgl. 19 % MwSt. angemietet werden kann. Nach Absprache können ggf. weitere Stellplätze angemietet werden.
Energieausweis:
Baujahr des Gebäudes laut Energieausweis: 2000
Wesentlicher Energieträger der Heizung: Gas
Art des Energieausweises: verbrauchsabhängiger Energieausweis
Endenergieverbrauch: 94,12 kWh/(m²a)
Energieeffizienzklasse: C
Ausstellungsdatum des Energieausweises: 27.06.2025
Gerne kann der Energieausweis eingesehen und/oder ausgehändigt werden.
Bezugsfrei:
nach Vereinbarung
Mietzins:
€ 2.455,– zzgl. € 800,– Nebenkosten zzgl. 19 % MwSt.
Nebenkosten:
€ 800,– zzgl. 19 % MwSt. inkl. Heizung, Wasser/Abwasser etc. exkl. Strom
als monatliche Vorauszahlung mit jährlicher Abrechnung.
Kaution:
3 Monatskaltmieten
Courtage:
2,38 Monatskaltmieten (inkl. MwSt.) Mietercourtage, für den Nachweis oder die Vermittlung; verdient und fällig mit Abschluss des Mietvertrages.
Allgemeiner Hinweis:
Wir sind um korrekte Angaben bemüht, können aber keine Gewähr übernehmen. Die Angaben basieren auf Informationen, die uns von unserem Auftraggeber übermittelt wurden.
Irrtum vorbehalten.
